國內擁有最多、最齊全的防火捲門 / 防火認證證書廠商
回下載專區總表
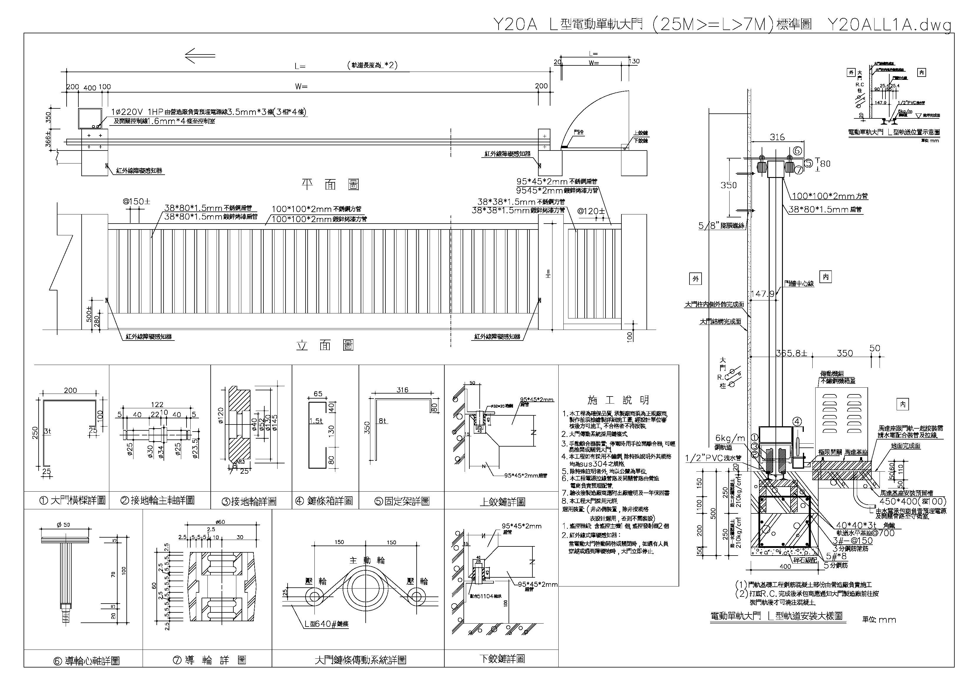
單軌式大門

開啟檔案PDF  (179kb)
更新日期 :2014-04-28
元群建材工業股份有限公司
大陸元群建材有限公司
新北市中和區連城路469巷31號
維修專線: 02-2668-8971
EMAIL: y2255393@ms17.hinet.net
EMAIL: yc.co@msa.hinet.net
電話: 02-2225-5393
傳真: 02-2225-4782
蘇州公司:135-0620-5989
©2020 元群建材 | All Rights Reserved. 建議使用 Google Chrome 瀏覽器